Обратная связь
У Вас есть вопросы? Нужна помощь?
Заполните форму ниже и мы свяжемся с Вами
в ближайшее время!

Нажимая “Отправить” вы соглашаетесь с Политикой конфиденциальности

Благодарим за обращение!
Наш менеджер свяжется с Вами в ближайшее время!
Закрыть
Оставить заявку
Заинтересовало предложение?
Заполните форму, мы свяжемся с вами в ближайшее время
и проконсультируем по всем вопросам!

Нажимая “Отправить” вы соглашаетесь с Политикой конфиденциальности

Благодарим за обращение!
Наш менеджер свяжется с Вами в ближайшее время!
Закрыть

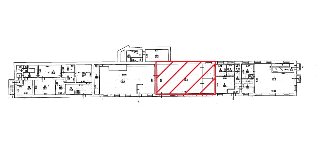
Офис

Ставка аренды: 35 000 руб. за 1 кв.м/год (включая НДС и эксплуатационные расходы) 

Месячная арендная плата: 457 625 руб.

Дополнительные платежи: КУ оплачиваются отдельно по факту потребления 

Оставить заявку
Наверх
Сервис звонка с сайта RedConnect